1.1GMP的定义
GMP(Good manufacture practice)《药品生产质量管理规范》
在药品生产企业的实施包括两方面的内容:软件和硬件。
软件是指先进可靠的生产工艺,严格的管理制度、文件和质量控制系统;
硬件是指合格的厂房,生产环境和设备。
硬件设施是药品生产的根本条件。
1.2GMP的核心
GMP 的核心就是防治药品生产中的混批、混杂、污染和交叉污染。
1.3GMP车间环境要求
生产工艺对温度和湿度无特殊要求时,空气洁净度 A 级、B 级的医药洁净室(区)温度应为 20-24℃,相对湿度应为 45%-60%;
空气洁净度 D 级的医药洁净室(区)温度应为 18-26℃,相对湿度应为 45%-65%。
人员净化及生活用室的温度,冬季应为 16-20℃,夏季为 26-30℃。

洁净区与非洁净区之间、不同洁净区之间的压差应不低于 10Pa。必要时,相同洁净区内不同功能房间之间应保持适当的压差梯度。
医药洁净室(区)应根据生产要求提供足够的照度。主要工作室一般照明的照度值不宜低于 300LX;辅助工作室、走廊、气闸室、人员净化和物料净化用室(区)不宜低于 150LX。
对照度有特殊要求的生产部位可设置局部照明。
非单向流的医药洁净室(区)噪声级(空态)应不大于 60dB(A) 。单向流和混合流的医药洁净室(区)噪声级(空态)应不大于 65dB(A) 。
1.4GMP车间基本布局

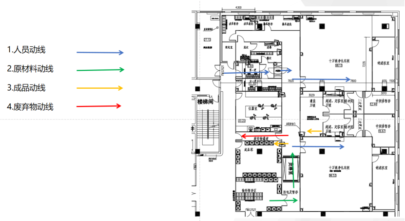
1.5GMP车间动线
